Ta strona korzysta z ciasteczek, aby świadczyć usługi na najwyższym poziomie. Dalsze korzystanie ze strony oznacza, że zgadzasz się na ich użycie.

Strona główna Produkty Komercyjne gruntowe pompy ciepła SIP
Komercyjne gruntowe pompy ciepła

SIP

O produkcie

Gruntowe pompy ciepła marki Novelan z serii SIP to urządzenia o dużej mocy, zaprojektowane do realizacji zaawansowanych zadań w obszarze profesjonalnym, komercyjnym i przemysłowym. Dzięki możliwości łączenia pomp SIP w kaskady, mogą one spełnić zapotrzebowanie energetyczne nawet bardzo dużych budynków. Modele SIP H oferują wersje wysokotemperaturowe, zdolne osiągnąć temperaturę zasilania do 70°C.

Zalety
Gruntowe pompy dużych mocy do zastosowań komercyjnych
Niewielkie wymiary - transport przez standardowe drzwi
Opcjonalne chłodzenie pasywne lub aktywne
Bardzo ciche – nawet 39 dB w odległości 1 m
Możliwość łączenia w kaskady dla największego zapotrzebowania
Temperatura na zasilaniu do 65 °C wersja podstawowa i do 70 °C (wersje H)
Prosty w obsłudze regulator Luxtronik 2.0
Sterowanie zdalne zarówno jak i dla klienta końcowego tak i dla serwisu
5 lat gwarancji w standardzie
Cennik
Nazwa wariantu Kolor Cena (Netto)
SIP 37.1 Srebrny Na zapytanie
SIP 45.1 Srebrny Na zapytanie
SIP 58.1 Srebrny Na zapytanie
SIP 69.1 Srebrny Na zapytanie
Dane techniczne
Model Jednostki SIP 37.1 SIP 45.1 SIP 58.1 SIP 69.1
Moc grzewcza I COP, punkt wg normy EN 14511
B0/W35, 1 sprężarka kW I COP 37,2 I 4 ,80 45,0 I 4 ,80 57,6 I 4 ,80 68,5 I 4 ,60
B0/W45, 1 sprężarka kW I COP 35,8 I 3 ,70 42,7 I 3 ,70 55,8 I 3 ,80 66,1 I 3 ,60
B7/W35, 1 sprężarka kW I COP 45,4 I 5 ,60 55,0 I 5 ,70 71,1 I 5 ,80 84,1 I 5 ,40
B0/W50, 1 sprężarka kW I COP 34,8 I 2 ,90 41,1 I 2 ,90 54,1 I 3 ,00 64,6 I 2 ,90
Zakres zastosowania
obieg grzewczy °C 20 - 57 20 - 58 20 - 60 20 - 60
dolne źródło ciepła °C -5 - 25 -5 - 25 -5 - 25 -5 - 25
Dodatkowe punkty pracy °C B3/W65 B0/W65 B0/W65 B0/W65
Poziom hałasu
Poziomi ciśnienia akutysteczno w odległ. 1m od urządz. dB(A) 39 41 42 44
Poziom mocy akustycznej zg. z. DIN EN 12102 dB(A) 54 56 57 59
Dolne żródło
Przepływ: minimalny I nominalny I maksymalny l/h 6900 I 9200 I 11100 8100 I 10800 I 13000 13000 I 17300 I 21000 4900 I 6500 I 7800
Strata ciśnienia na pompie ciepła Δp I p rzepływ bar I l/h 0,16 I 9 200 0,15 I 10800 0,15 I 13600 0,16 I 17300
Dozwolone mieszanki / Glikol monoetylenowy Glikol propylenowy Metanol Etanol Glikol monoetylenowy Glikol propylenowy Metanol Etanol Glikol monoetylenowy Glikol propylenowy Metanol Etanol Glikol monoetylenowy Glikol propylenowy Metanol Etanol
Min. Stężenie mieszanki: Minimalna ochrona przed zamarzanem do temp. % / °C 25 I -13 25 I -13 25 I -13 25 I -13
Obieg grzewczy
Przepływ: minimalny I n ominalny I m aksymalny l/h 3200 I 6400 I 8000 3900 I 7800 I 9400 4900 I 9700 I 12200 5700 I 11300 I 14200
Strata ciśnienia na pompie ciepła Δp I p rzepływ bar I l/h 0,12 I 6 400 0,12 I 7 800 0,12 I 9700 0,12 I 11300
Różnica temperatur przy B0/W35 K 5 5 5 5
Dane ogólne
Waga całkowita kg (kg) 371 385 441 484
Typ czynnika chłodniczego I ilość czynnika chłodniczego … I kg R410A I 7,2 R410A I 8 ,2 R410A I 11,2 R410A I 13,4
Przyłącza wodne
Obieg grzewczy DN50 DIN2566 DN50 DIN2566 DN50 DIN2566 DN50 DIN2566
Dolne źródło ciepła DN50 DIN2566 DN50 DIN2566 DN50 DIN2566 DN50 DIN2566
Parametry elektryczne
Zasilanie I Zabezpieczenie nadprądowe pomp. Ciepła _ | A 3~/PE/400V/50Hz I C32 3~/PE/400V/50Hz I C40 3~/PE/400V/50Hz I C50 3~/PE/400V/50Hz I C50
Zasilanie I Zabezpieczenie nadprądowe sterowanie _ | A 1~/N/PE/230V/50Hz I B16 1~/N/PE/230V/50Hz I B16 1~/N/PE/230V/50Hz I B16 1~/N/PE/230V/50Hz I B16
Efektywny pobór mocy w punkcie B0/W35 wg normy EN 14511: pobór mocy I p obór prądu I c osφ kW I A I … 7,8 I 1 3,97 I 0 ,8 9,4 I 1 8,28 I 0 ,72 12,0 I 2 2,16 I 0 ,76 14,9 I 2 8,14 I 0, 75
Prąd rozruchowy A | A 140 I 2 9 174 I 4 5 225 I 9 7 272 I 105
Stopień ochrony IP 20 20 20 20
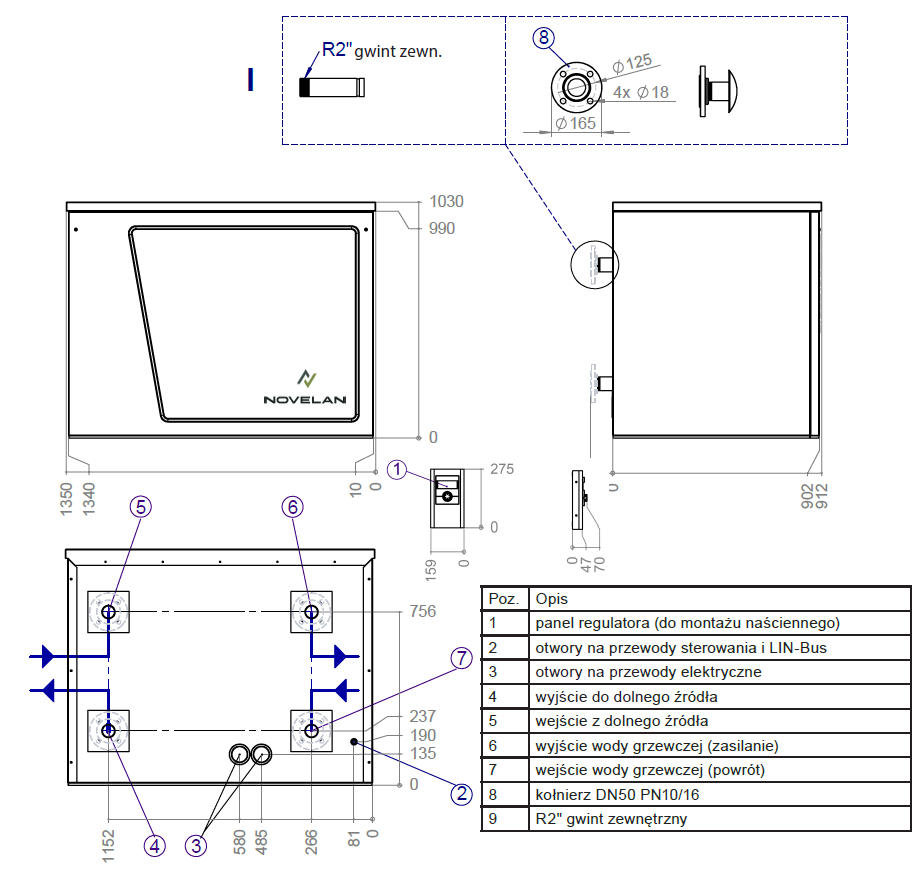
Wymiary
Wymiary - SIP
Model Szerokość Głębokość Wysokość
SIP 37.1 1350 912 1030
SIP 45.1 1350 912 1030
SIP 58.1 1350 912 1030
SIP 69.1 1350 912 1030
Wymiary - SIP
Model Szerokość Głębokość Wysokość
SIP 37.1 1190 760 961
SIP 45.1 1190 760 961
SIP 58.1 1190 760 961
SIP 69.1 1190 760 961
Pliki do pobrania

Produkty z tej samej kategorii

Baza wiedzy
Dowiedz się więcej na temat produktów i ich obsługi.
Gwarancja
Nawet 5 lat gwarancji
W urządzeniach marki NOVELAN zastosowano najnowsze rozwiązania techniczne sprawiające, że urządzenia są przyjazne środowisku, komfortowe, a przede wszystkim solidnie wykonane. Wysoka niezawodność urządzeń pozwala na udzielenie 5 lat gwarancji.
Znajdź instalatora
Popup image