Ta strona korzysta z ciasteczek, aby świadczyć usługi na najwyższym poziomie. Dalsze korzystanie ze strony oznacza, że zgadzasz się na ich użycie.

Strona główna Produkty Komercyjne gruntowe pompy ciepła SIP H
Komercyjne gruntowe pompy ciepła

SIP H

O produkcie

Gruntowe pompy ciepła marki Novelan z serii SIP to urządzenia o dużej mocy, zaprojektowane do realizacji zaawansowanych zadań w obszarze profesjonalnym, komercyjnym i przemysłowym. Dzięki możliwości łączenia pomp SIP w kaskady, mogą one spełnić zapotrzebowanie energetyczne nawet bardzo dużych budynków. Modele SIP H oferują wersje wysokotemperaturowe, zdolne osiągnąć temperaturę zasilania do 70°C.

Zalety
Gruntowe pompy dużych mocy do zastosowań komercyjnych
Niewielkie wymiary - transport przez standardowe drzwi
Opcjonalne chłodzenie pasywne lub aktywne
Bardzo ciche – nawet 39 dB w odległości 1 m
Możliwość łączenia w kaskady dla największego zapotrzebowania
Temperatura na zasilaniu do 65 °C wersja podstawowa i do 70 °C (wersje H)
Prosty w obsłudze regulator Luxtronik 2.0
Sterowanie zdalne zarówno jak i dla klienta końcowego tak i dla serwisu
5 lat gwarancji w standardzie
Cennik
Nazwa wariantu Kolor Cena (Netto)
SIP 29.1 H Wysokotemperaturowa Srebrny Na zapytanie
SIP 56.1 H Wysokotemperaturowa Srebrny Na zapytanie
Dane techniczne
Model Jednostki SIP 29.1 H SIP 56.1 H
Moc grzewcza I COP, punkt wg normy EN 14511
B0/W35, 1 sprężarka kW I COP 25,9 | 4 ,37 53,8 | 4 ,50
B0/W45, 1 sprężarka kW I COP 24,9 | 3 ,46 52,9 | 3 ,80
B7/W35, 1 sprężarka kW I COP 31,5 | 5 ,10 65,9 | 5 ,20
B0/W50, 1 sprężarka kW I COP 24,7 | 2 ,80 52,1 | 3 ,10
Zakres zastosowania
obieg grzewczy °C 20 - 64 20 - 64
dolne źródło ciepła °C -5 - 25 -5 - 25
Dodatkowe punkty pracy °C B4/W70 B0/W70
Poziom hałasu
Poziomi ciśnienia akutysteczno w odległ. 1m od urządz. dB(A) 43 44
Poziom mocy akustycznej zg. z. DIN EN 12102 dB(A) 58 59
Dolne żródło
Przepływ: minimalny I nominalny I maksymalny l/h 4900 | 6500 | 7800 9400 | 12600 | 19100
Strata ciśnienia na pompie ciepła Δp I p rzepływ bar I l/h 0,16 | 6 500 0,16 | 12600
Dozwolone mieszanki / Glikol monoetylenowy Glikol propylenowy Metanol Etanol Glikol monoetylenowy Glikol propylenowy Metanol Etanol
Min. Stężenie mieszanki: Minimalna ochrona przed zamarzanem do temp. % / °C 25 I -13 25 I -13
Obieg grzewczy
Przepływ: minimalny I n ominalny I m aksymalny l/h 2400 | 4700 | 5900 4400 | 8900 | 11200
Strata ciśnienia na pompie ciepła Δp I p rzepływ bar I l/h 0,12 | 4700 0,12 | 8 900
Różnica temperatur przy B0/W35 K 5 5
Dane ogólne
Waga całkowita kg (kg) 319 521
Typ czynnika chłodniczego I ilość czynnika chłodniczego … I kg R134a | 6 ,7 R134a | 12,8
Przyłącza wodne
Obieg grzewczy DN50 DIN2566 DN50 DIN2566
Dolne źródło ciepła DN50 DIN2566 DN50 DIN2566
Parametry elektryczne
Zasilanie I Zabezpieczenie nadprądowe pomp. Ciepła _ | A 3~/PE/400V/50Hz I C40 3~/PE/400V/50Hz I 540
Zasilanie I Zabezpieczenie nadprądowe sterowanie _ | A 1~/N/PE/230V/50Hz I B16 1~/N/PE/230V/50Hz I B16
Efektywny pobór mocy w punkcie B0/W35 wg normy EN 14511: pobór mocy I p obór prądu I c osφ kW I A I … 5,9 | 1 5,16 | 0 ,56 12,0 | 2 7,80 | 0, 63
Prąd rozruchowy A | A 174 | 91 310 | 125
Stopień ochrony IP 20 20
Wymiary
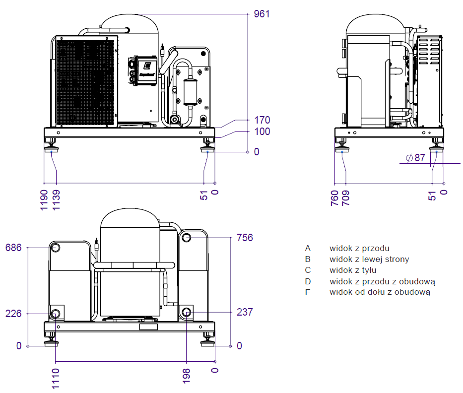
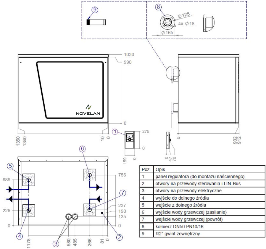
Wymiary - SIP H
Model Szerokość Głębokość Wysokość
SIP 29.1 H 1350 912 1030
SIP 56.1 H 1350 912 1030
Wymiary - SIP H
Model Szerokość Głębokość Wysokość
SIP 29.1 H 1190 760 961
SIP 56.1 H 1190 760 961
Pliki do pobrania

Produkty z tej samej kategorii

Baza wiedzy
Dowiedz się więcej na temat produktów i ich obsługi.
Gwarancja
Nawet 5 lat gwarancji
W urządzeniach marki NOVELAN zastosowano najnowsze rozwiązania techniczne sprawiające, że urządzenia są przyjazne środowisku, komfortowe, a przede wszystkim solidnie wykonane. Wysoka niezawodność urządzeń pozwala na udzielenie 5 lat gwarancji.
Znajdź instalatora
Popup image