Ta strona korzysta z ciasteczek, aby świadczyć usługi na najwyższym poziomie. Dalsze korzystanie ze strony oznacza, że zgadzasz się na ich użycie.

Strona główna Produkty Gruntowe pompy ciepła WSV
Gruntowe pompy ciepła

WSV

O produkcie

Gruntowa pompa ciepła Novelan to innowacyjne rozwiązanie zapewniające efektywne i niezawodne ogrzewanie budynków w każdych warunkach. Dzięki wykorzystaniu energii zmagazynowanej w gruncie, pompa zapewnia stabilną temperaturę pomieszczeń przez cały rok. Jest to idealne rozwiązanie zarówno dla nowo budowanych, jak i modernizowanych obiektów. Pompa Novelan gwarantuje nie tylko oszczędności w eksploatacji, ale także niezwykłą wygodę w obsłudze i montażu.

 

Wyposażenie modelu:

  • - regulator WPR-NET 2.1 (Luxtronik 2.1)

- zasobnik CWU 180l

  • - pompa obiegowa górnego źródła ciepła (instalacja domowa)
  • - pompa obiegowa dolnego źródła ciepła (instalacja podziemna)
  • - zawór 3-drogowy CO/CWU
  • - zawór przelewowy
  • - odpowietrzniki
  • - grzałka elektryczna 6kW
  • - zawory napełniająco-spustowe
  • - możliwość doposażenia w pakiet chłodzenia pasywnego
Zalety
WYSOKA EFEKTYWNOŚĆ Dzięki zastosowaniu systemu inteligentnego zarządzania energią z programami czasowymi oraz trybem nocnym, a także wariantami kontroli mocy, serie SICV oraz WSV pracują niezwykle efektywnie i oszczędnie.
KOMPAKTOWA INSTALACJA Olbrzymią zaletą, nie tylko dla właściciela, ale także instalatora, jest zamknięcie wszystkich najważniejszych komponentów instalacji w jednej obudowie, dzięki czemu oszczędzamy zarówno czas, miejsce, jak i pieniądze. Dodatkowo seria WSV charakteryzuje się zintegrowanym zasobnikiem c.w.u. o pojemności 180l.
ZDALNY DOSTĘP Aplikacja Myuplink umożliwia użytkownikowi kontrolowanie oraz dostosowywanie parametrów pracy urządzenia bez konieczności przebywania w pobliżu budynku.
NIEZAWODNOŚĆ I GWARANCJA Sprężarka inwerterowa, energooszczędne pompy obiegowe oraz wysokiej klasy komponenty zapewniają użytkownikowi poczucie bezpieczeństwa, a samo urządzenie objęte jest 5 letnią gwarancją.
ELASTYCZNOŚĆ I WSZECHSTRONNOŚĆ Zarówno seria SICV jak i WSV występują w wersjach z możliwością chłodzenia (modele K3), a wszystkie pozwalają na współpracę z wentylacją, fotowoltaiką oraz innymi źródłami ciepła.
Cennik
Nazwa wariantu Kolor Cena (Netto)
WSV 6.2H3M Grzanie Biały 46 500,00 zł
WSV 9.2H3M Grzanie Biały 51 000,00 zł
WSV 12.2H3M Grzanie Biały 53 500,00 zł
WSV 6.2K3M Grzanie/Chłodzenie Biały 52 500,00 zł
WSV 9.2K3M Grzanie/Chłodzenie Biały 57 000,00 zł
WSV 12.2K3M Grzanie/Chłodzenie Biały 60 500,00 zł
Dane techniczne
Model Jednostki WSV 6.2H3(K3) WSV 9.2H3(K3) WSV 12.2H3(K3)
Moc grzewcza I COP
dla B0/W35, DIN EN 14511-x: 2013, kW I COP 3.32 I 4.86 4.00 I 4.76 5.06 I 4.87
dla B0/W45, DIN EN 14511-x: 2013 kW I COP 3.09 I 3.76 3.82 I 3.74 4.78 I 3.75
dla B0/W55, DIN EN 14511-x: 2013 kW I COP 2.95 I 3.13 3.41 I 2.90 4.58 I 3.13
dla B7/W35 przepł. Dla B0/W35 kW I COP 4.18 I 5.94 4.91 I 5.74 5.92 I 6.08
Moc grzewcza I COP
dla B0/W35, min. I max. kW I COP 1.25 I 5.95 1.77 I 8.65 2.48 I 13.56
dla B0/W45, min. I max. kW I COP 1.16 I 5.50 1.79 I 8.42 2.24 I 12.88
dla B0/W55, min. I max. kW I COP 1.00 I 5.17 1.96 I 8.18 2.54 I 12.53
dla B7/W35, min. I max. kW I COP 1.55 I 7.20 2.31 I 10.60 2.94 I 15.82
Wydajność chłodnicza przy maks. Przepł. (B15/W25), urządzenia z chłodzeniem pasywnym: (K)
Obieg grzewczy
Min. Temp. powrotu z instalacji grzewcz. I Max. temp. zasilania instalacji grzewcz. °C 20 I 65 20 I 65 20 I 65
Min. Temp. powrotru z instalacji chłd I Max. temp. zasilania instalacji chłd. °C 18 18 18
Dolne żródło, temp. °C -5 I 30 -5 I 30 -5 I 30
Dodatkowe punkty pracy °C B-9/W60 B-9/W60 B-9/W60
Poziom hałasu
Poziomi ciśnienia akutysteczno w odległ. 1m od urządz. dB(A) 29 I 36 29 I 36 29 I 38
Poziom mocy akustycznej zg. z. DIN EN 12102-1: 2017 dB(A) 44 I 51 44 I 54 44 I 53
Dolne żródło
Przepływ l/h 1450 2000 3200
Max. ciśn. Swob. pompy ob.. doln. Zródł. (z K) I Przepływ bar (bar) I l/h 0.5 (0.47) I 1450 0.56 (0.49) I 2000 1.08 (1.03) I 1270
Dozwolone mieszanki / Glikol monoetylenowy Glikol propylenowy Metanol Etanol Glikol monoetylenowy Glikol propylenowy Metanol Etanol Glikol monoetylenowy Glikol propylenowy Metanol Etanol
Min. Stężenie mieszanki: Minimalna ochrona przed zamarzanem do temp. °C -15 -15 -15
Maksymalne dopuszczalne ciśnienie robocze bar 3 3 3
Zakres sterowania pompą obiegową l/h 300 I 3500 300 I 4000
Obieg grzewczy
Przepływ l/h 1050 1500 2300
Max. ciśn. swobodne pompy ob.. (z K) I Przepływ bar (bar) I l/h 0.65 (0.63) I 1050 0.46 (0.41) I 1500 0.69 (0.65) I 870
Maksymalne dopuszczalne ciśnienie robocze bar 3 3 3
Dane ogólne
Waga całkowita (z chłodzeniem) kg (kg) 240 (248) 244 (252) 263 (271)
Waga boxu chł. (z chłodzeniem) I Waga wieży (z chłodzeniem) kg (kg) I kg (kg) 80(88) I 160 (160) 84(92) I 160 (160) 103(111) I 160 (160)
Typ czynnika chłodniczego I ilość czynnika chłodniczego … I kg R407C I 1.16 R407C I 1.25 R407C I 2.0
Zbiornik CWU
Pojemność netto l 178 178 178
Anoda tytanowa yes / no tak tak tak
Temperatura CWU, tryb pompy ciepła I Grzałka elektr. up to °C I up to °C 58 I 65 58 I 65 58 I 65
Ilość wody zmieszanej zgodnie z ErP: 2009/125/WE (przy 40 °C, pobór 10 l/min) l 240 240 240
Strata postojowa zgodnie z ErP: 2009/125/WE (przy 65 °C) °C 60 60 60
Maksymalne ciśnienie I Ciśnienie próbne bar | bar 10 | 13 10 | 13 10 | 13
Parametry elektryczne
Zasilanie I Zabezpieczenie nadprądowe pomp. ciepła + grzałka elektryczna _ | A 3-N/PE/400V/50Hz I C16 3-N/PE/400V/50Hz I C16 3-N/PE/400V/50Hz I C16
Zasilanie I Zabezpieczenie nadprądowe sterowanie _ | A 1-N/PE/230V/50Hz I B10 1-N/PE/230V/50Hz I B10 1-N/PE/230V/50Hz I B10
Maksymalny prąd pracy I Maksymalny pobór mocy w granicach roboczych A | kW 12 I 2.6 12 I 2.9 9 I 5.5
Prąd rozruchowy A | A < 5 I - < 5 I - < 5 I -
Stopień ochrony IP 20 20 20
Moc stopni grzałki elektrycznej kW | kW | kW - I 6 I 3 - I 6 I 3 9 I 6 I 3
Pobór mocy pompy obiegowej obiegu grzewczego I doln. źródła ciepła W | W 2 - 60 I 5 - 87 2 - 60 I 3 - 140 2 - 60 I 3 - 180
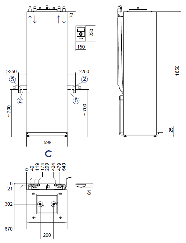
Wymiary
Wymiary - WSV
Model Szerokość Głębokość Wysokość
WSV 6.2H3(K3) 598 670 1850
WSV 9.2H3(K3) 598 670 1850
WSV 12.2H3(K3) 598 670 1850
Wymiary - WSV
Model Szerokość Głębokość Wysokość
WSV 6.2H3(K3) 535 590 585
WSV 9.2H3(K3) 535 590 585
WSV 12.2H3(K3) 535 590 585
Pliki do pobrania

Produkty z tej samej kategorii

Baza wiedzy
Dowiedz się więcej na temat produktów i ich obsługi.
Gwarancja
Nawet 5 lat gwarancji
W urządzeniach marki NOVELAN zastosowano najnowsze rozwiązania techniczne sprawiające, że urządzenia są przyjazne środowisku, komfortowe, a przede wszystkim solidnie wykonane. Wysoka niezawodność urządzeń pozwala na udzielenie 5 lat gwarancji.
Znajdź instalatora
Popup image